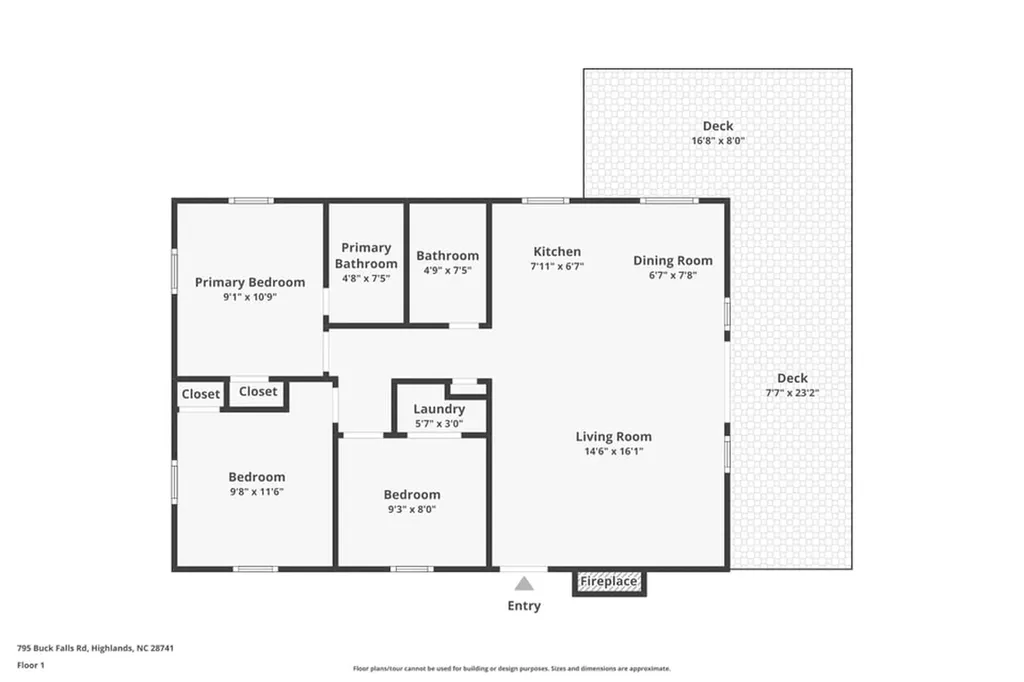
Charming mountain cabin located in the Buck Falls community just minutes from downtown Highlands, NC. This 3-bedroom, 2-bath home offers classic cabin character combined with recent updates, making it an ideal mountain retreat, full-time residence, or weekend getaway. The interior features warm wood-paneled walls and solid wood ceilings throughout, creating an inviting mountain feel. The open living area flows comfortably into the kitchen and dining space, anchored by a stone fireplace for cozy evenings. Enjoy the outdoor space on your paritally covered deck and the views of the mountain woodlands. Enjoy the ease of new luxury vinyl plank flooring installed in the living areas and both full bathrooms, while all bedrooms feature new carpet. Recent improvements include all new windows throughout the home, providing enhanced natural light and energy efficiency, as well as new gutters and a freshly painted exterior and deck. The partially covered deck offers a peaceful outdoor space surrounded by wooded privacy and perfect for relaxing or entertaining. The primary bedroom includes an en-suite full bathroom with a tub/shower combination. A second full hallway bathroom also features a tub/shower combo and new LVP flooring. One of the bedrooms includes washer and dryer connections located in the closet, offering flexibility for laundry placement. Situated on a .89-acre lot, the property provides room for gardening or potential future improvements such as a garage or workshop (buyer to verify with CC & R's). Located on a private road with HOA, Buck Falls is known for its quiet setting, and convenient access to Highlands' shopping, dining, and outdoor recreation. This well-maintained mountain cabin combines charm, functionality, and recent updates and is ready for immediate enjoyment in one of Western North Carolina's most desirable mountain communities. Visit the community creekside park with picnic tables at the end of Doe Falls. Enjoy the Beauty of your escape into the mountains. Buyer to verify all facts independently.

Listing Tools

Property Details of 795 Buck Falls Road

Property Details

Interior Features

Utilities and Appliances

Community

Other Details

Map Location

 "Based on information submitted to HCBOR as of February 10, 2026 10:13 PM EST. All data is deemed reliable but is not guaranteed accurate by the MLS. All information should be independently reviewed and verified for accuracy. IDX information is provided exclusively for consumers’ personal, noncommercial use and may not be used for any purpose other than to identify prospective properties consumers may be interested in purchasing."

Hi there! How can we help you?

Contact us using the form below or give us a call.

Send Us A Message:

I agree to receive marketing and customer service calls and text messages from Caliber Fine Properties. To opt out, you can reply 'stop' at any time or click the unsubscribe link in the emails. Consent is not a condition of purchase. Msg/data rates may apply. Msg frequency varies. Privacy Policy.

Do not fill in this field:

This site is protected by reCAPTCHA and the Google Privacy Policy and Terms of Service apply.