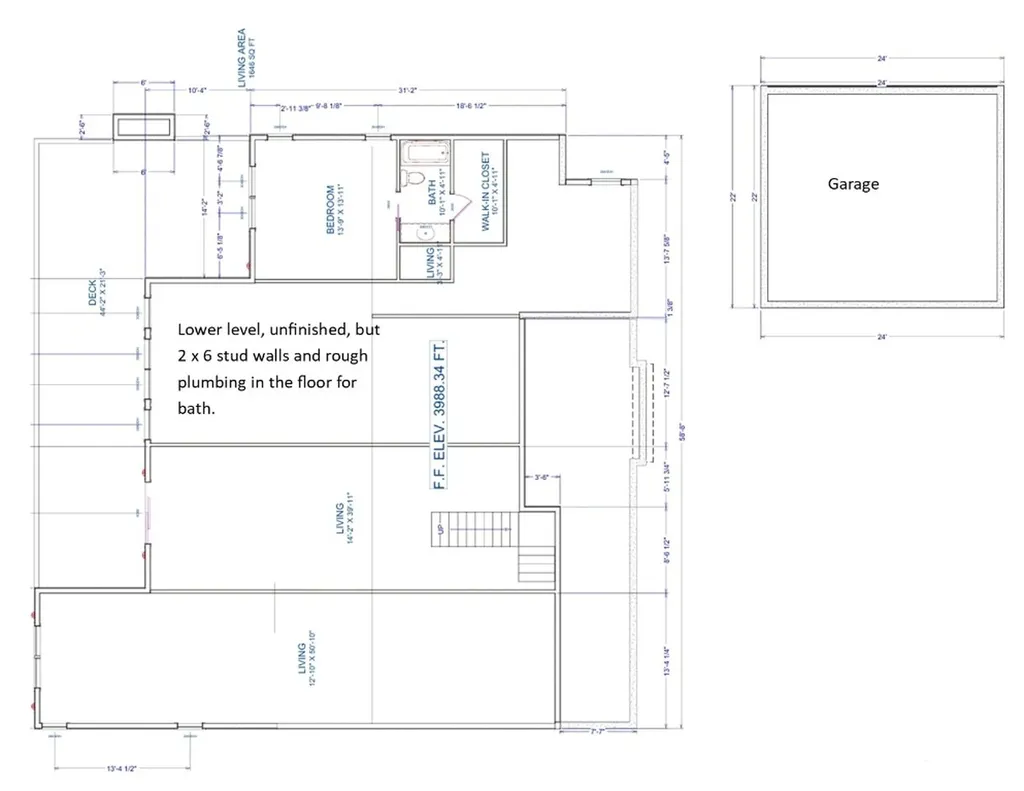
Charming Craftsman Home in Cullasaja Club with Main-Level Living. Located on the 10th Fairway with an expansive view of the golf course. Located inside the prestigious, gated Cullasaja Club, this beautifully designed craftsman-style home offers effortless main-level living and the rare opportunity to expand with an unfinished, plumbed lower level. Surrounded by mature trees and cool mountain breezes, this residence captures the relaxed elegance and outdoor lifestyle that define the Highlands-Cashiers Plateau. The main level features three comfortable bedrooms, including a welcoming primary suite, along with spacious living areas highlighted by warm finishes and classic architectural details. Large windows bring in natural light and views of the golf course from both the Livingroom/great room, outdoor deck or the screened in porch with fireplace, creating a peaceful mountain retreat. The unfinished basement provides outstanding potential-already plumbed for an additional bedroom and full bath, allowing you to customize the space for guests, hobbies, storage, or future expansion. Living in Cullasaja Club offers an exceptional lifestyle with access to world-class amenities (membership by invitation). The community features an Arnold Palmer golf course, clubhouse dining, tennis and pickleball, a fitness center, heated pool, and a warm, welcoming social environment loved by full-time and seasonal residents alike. Just minutes from the shopping, dining, and cultural offerings of Highlands, this home combines convenience with the tranquility of private mountain living. Enjoy cool summers, vibrant autumn colors, and the unique charm of one of the plateau's most sought-after clubs. A perfect blend of quality, comfort, and lifestyle - with room to grow. Let your mountain life??????????? begin.

Listing Tools

Property Details of 152 S Fairway Cottage Lane

Property Details

Interior Features

Utilities and Appliances

Community

Other Details

Map Location

 "Based on information submitted to HCBOR as of January 17, 2026 4:13 AM EST. All data is deemed reliable but is not guaranteed accurate by the MLS. All information should be independently reviewed and verified for accuracy. IDX information is provided exclusively for consumers’ personal, noncommercial use and may not be used for any purpose other than to identify prospective properties consumers may be interested in purchasing."

Hi there! How can we help you?

Contact us using the form below or give us a call.

Send Us A Message:

I agree to receive marketing and customer service calls and text messages from Caliber Fine Properties. To opt out, you can reply 'stop' at any time or click the unsubscribe link in the emails. Consent is not a condition of purchase. Msg/data rates may apply. Msg frequency varies. Privacy Policy.

Do not fill in this field:

This site is protected by reCAPTCHA and the Google Privacy Policy and Terms of Service apply.