In the heart of Downtown Highlands and tucked conveniently behind Main Street stands Eight on Oak, now under construction; An exclusive collection of eight luxury homes, Eight on Oak offers you the opportunity for Elevated Mountain Living with all the bells and whistles. Eight on Oak is where ease of living meets understated charm. Each residence is a blend timeless craftsmanship and creative spaces with a mountain-modern touch. Envision10-foot ceilings with exposed wood beams, designer kitchens, hardwood floors, ease of flow to indoor-outdoor spaces with private screened porches and stone fireplaces. With 3 bedrooms, 3.5 baths, two-car garages, HOA-maintained courtyards, and optional elevators, these homes are designed for lock-and-leave ease and/or full-time residency, take your pick. Your backyard is the splendor and scenic views of the Highlands Greenway and the Mill Creek watershed. Lifestyle is enhanced by being a short stroll to top-notch shops & boutiques, restaurants, and the cultural assets that define Highlands. Eight on Oak is where nature & neighborhood live in perfect balance with community & relationships. Eight on Oak…This is where you belong! PRICING NOTE: FINAL DELIVERED PRICE IS BASED UPON FINISHES SELECTED AND CUSTOMIZATION OF EACH UNIT. EXACT FINAL PRICING WILL BE PRESENTED TO BUYERS PRIOR TO CONTRACT.

Listing Tools

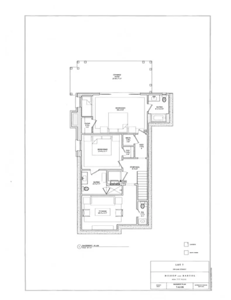
Property Details of 299 Oak Street, Unit 7

Property Details

Interior Features

Utilities and Appliances

Community

Other Details

Map Location

 "Based on information submitted to HCBOR as of January 17, 2026 4:13 AM EST. All data is deemed reliable but is not guaranteed accurate by the MLS. All information should be independently reviewed and verified for accuracy. IDX information is provided exclusively for consumers’ personal, noncommercial use and may not be used for any purpose other than to identify prospective properties consumers may be interested in purchasing."

Hi there! How can we help you?

Contact us using the form below or give us a call.

Send Us A Message:

I agree to receive marketing and customer service calls and text messages from Caliber Fine Properties. To opt out, you can reply 'stop' at any time or click the unsubscribe link in the emails. Consent is not a condition of purchase. Msg/data rates may apply. Msg frequency varies. Privacy Policy.

Do not fill in this field:

This site is protected by reCAPTCHA and the Google Privacy Policy and Terms of Service apply.